鋼絲膠帶斗式提升機(TGD膠帶提升機)
周先生 13906278080 丁寶勤 13906276368
電話:0513-88400999 傳真:0513-88400998 郵箱:jszk@vip.163.com
產品概述
鋼絲膠帶斗式提升機(TGD膠帶提升機)具有輸送量大、體積小、功耗低、運行平穩可靠、使用壽命長等特點。鋼絲膠帶斗式提升機適用于干散粉狀物料或物料垂直提升,廣泛應于建材、冶金、化工、糧食、電力等行業散狀物料提升系統,是新型干法水泥廠窯尾入窯生料,生料均化庫、水泥庫入庫物料取代國外同規格產品的替換品。
I .Brief description
TGD Steel Wire Bucket elvator is a new product developed by CMHE that combined domestic production and use with foreign new technologies. This product is featured by large conveying capacity, small dimension, low power consumption, stable working and long service life. It is used for vertically lifting dry powdery and particulate materials in many industries, such as, building material, metallurgy, chemical, grain and power, etc. It is a good substitute for exported product of the same specification to be used for raw material charge at the kiln tail of the new dry process cement plant, raw - material homogenizing silo and cement silo.
工作原理
TGD型鋼絲繩芯膠帶斗式提升機牽引構件采用高強度鋼絲繩芯橡膠帶,克服了鏈條嚙合驅動產生動載荷,較鏈條更輕便,工作平穩,能以更快的運動速度達到更高的生產率,在同樣的生產條件下,膠帶因其工作速度高和自重較輕,可使物料線荷載和牽引構件的線載荷減少,從而減少整機的尺寸和自重。
同時由于膠帶具有良好彈性和柔韌性,在料斗進行裝載時有減振作用,由于采用了高強度鋼絲繩芯膠帶,可使提升機的提升高度和輸送 提高,因而TGD型鋼絲繩芯膠帶斗式提升機具有良好發展前景。
性能特點
1、提升高度高,單機可達到100m。
2、輸送能力大,可達到950m3/h。
3、物料溫度可達120℃。
4、料斗間排列緊密,連續提取,連續卸料。
5、使用壽命長,運行可靠性好,無故障時間可超過3萬小時。
6、功耗低,使用成本低。
7、操作維修方便,易損件少,維護費用比一般斗式提升減少80%以上。
8、結構精度高,強度大,外觀美觀。
技術參數
TGD型高效斗式提升機技術參數
機 型
| 斗 寬 | 斗 容 L | 帶 速 M/s | 提升能力Q m3/h | 減速 機速 比 | |||||
斗距t(mm) | ||||||||||
360 | 400 | 440 | 480 | 510 | 550 | |||||
TGD250淺斗 | 250 | 5.84 | 1.5 | 70 | 63 | 57 | 52 | 49 | 45 | 31.5 |
TGD250深斗 | 8.03 | 96 | 86 | 78 | 72 | 68 | 63 | 31.5 | ||
TGD315淺斗 | 315 | 7.37 | 1.5 | 88 | 79 | 72 | 66 | 62 | 57 | 31.5 |
TGD315深斗 | 10.13 | 121 | 109 | 99 | 91 | 85 | 79 | 31.5 | ||
TGD400淺斗 | 400 | 11.9 | 1.52 | 144 | 130 | 117 | 108 | 102 | 94 | 40 |
TGD400深斗 | 16.11 | 195 | 176 | 160 | 146 | 138 | 128 | 40 | ||
TGD500淺斗 | 500 | 18.65 | 1.52 | 226 | 204 | 185 | 170 | 160 | 148 | 40 |
TGD500深斗 | 25.29 |
| 276 | 251 | 230 | 217 | 201 | 40 | ||
TGD630淺斗 | 630 | 29.39 | 1.68 |
| 355 | 323 | 296 | 278 | 258 | 45 |
TGD630深斗 | 39.96 |
|
| 439 | 402 | 379 | 351 | 45 | ||
TGD800淺斗 | 800 | 33.21 | 1.68 | 446 | 401 | 365 | 334 | 315 | 292 | 45 |
TGD800深斗 | 43.74 |
| 529 | 480 | 440 | 414 | 384 | 45 | ||
TGD1000淺斗 | 1000 | 50.35 | 1.89 |
| 685 | 622 | 570 | 537 | 498 | 50 |
TGD1000深斗 | 64.15 |
| 872 | 793 | 727 | 684 | 634 | 50 | ||
TGD1250淺斗 | 1250 | 62.93 | 1.89 |
| 856 | 777 | 712 | 671 | 622 | 50 |
TGD1250深斗 | 80.18 |
| 1091 | 991 | 908 | 855 | 792 | 50 | ||
注:
1、表格中的輸送能力相應于100%的裝填量(裝水)
2、合理料斗填充率:75%左右
品質保證
1、驅動裝置交軸硬齒面減速機與提升機主軸直聯,結構緊湊、合理、可靠,與減速機間采用滾力偶合器,實現柔性傳動,并實現對電機的過載保護;減速機上配備逆止裝置,防止倒轉;配有輔轉電機,方便檢修。
2、采用防撕裂強度高的鋼絲繩膠帶,配有膠帶頭和料斗固定件,使膠帶在運行中不脫開、不撕(斷)裂,提高了膠帶的使用壽命;設計合理,并有不同型式排列,確保物料連續提升機卸出。
3、頭部滾筒設計采用自動對中裝置,滾筒包前采用高性能橡膠,使用壽命長,摩擦力大。
4、中部機殼采用雙通道優代設計,避免相對高速運行的膠帶帶來的渦流干擾,并設有加強角鋼。
5、尾部滾筒采用輪輻式設計,有效排出附著在膠帶上的物料,提高膠帶的使用壽命;尾部采用齒輪條重力張緊裝置;同步調節尾部滾筒行程。尾部滾筒采用自動對中設計,并附設皮帶防跑偏裝置和料位控制儀、速度檢測儀。
Quality Assurance
1. The drive has a reducer of rectangular axis and hard-toothed surface linked with the elevator shaft, which is well and reasonably structured. Fluid coupling is used between the motor and reducer, which makes flexible transmission po accessory motor, which makes check and repair convenient.
2_The product uses specially designed tear—proof high-strength steal wire rubber belt, together with specially designed belt connector and bucket fixers, which makes it possible for the belt not to come off or tear apart, and increases the service life. The elevators of the same model are able to have different conveying capacities by changing the buckets* distances so as to meet different design requirements.
The head roller has an automatic centering device. The roller* s wrapping rubber has high performance, long service life and great friction force.
The middle casing has two passages, which can avoid the vortex interference caused by the fast running belt. Also, it uses angle stiffeners. ,
The tail roller is spoke type, which can cast off the material stuck to the belt, and increase the belt* s service life. The tail has a double-arm co-axial gravity tensioning device, which can adjust the tail roller synchronously. The tail roller has an automatic centering device, belt deviation device, level control indicator and velometor. The tail structure is designed by CMHE alone. (Counterfeiting will be prosecuted.)
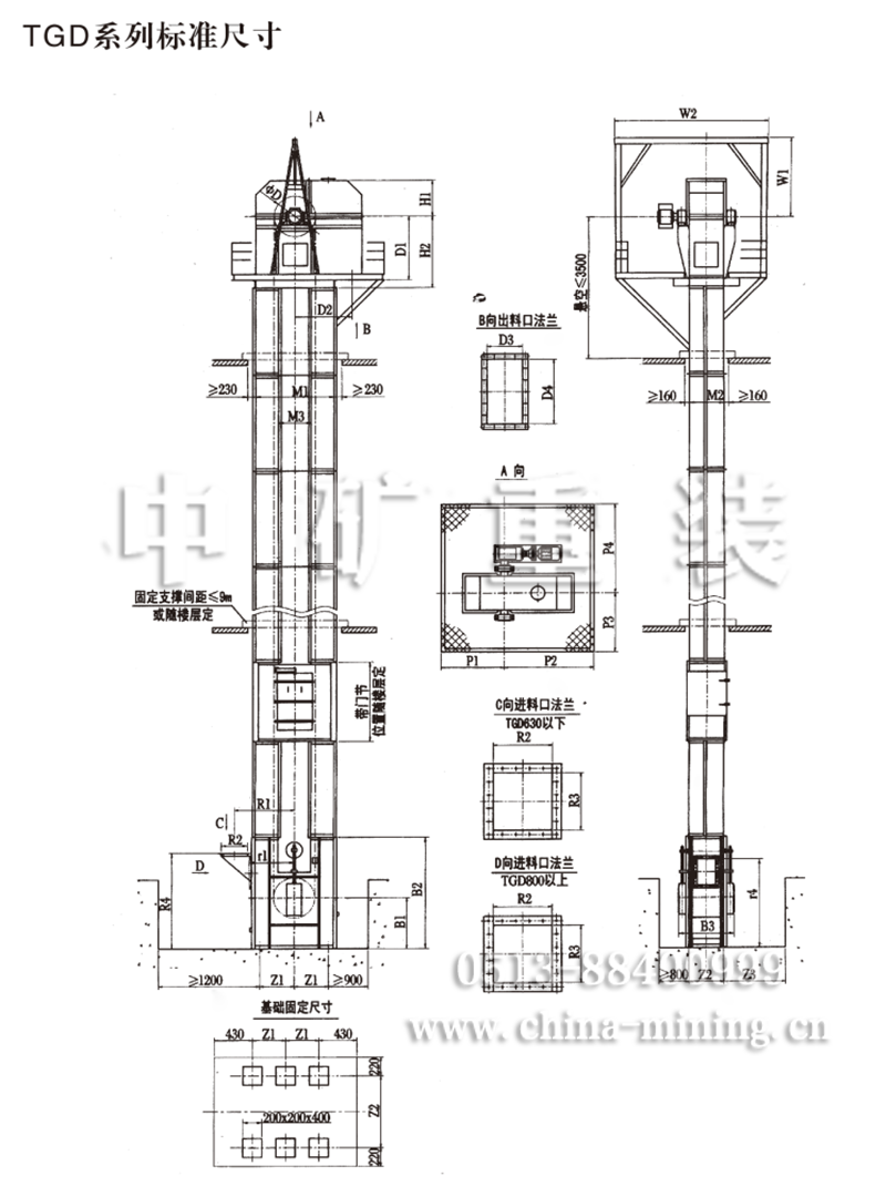
TGD系列標準尺寸


TGD斗式提升機尾部
標準尺寸
機型 |
| TGD315 | TGD400 | TGD500 | TGD630 | TGD800 | TGD1000 | TGD1250 | TGD1400 | TGD1600 |
滾筒直徑 | D | 630 | 800 | 1000 | 1250 | |||||
上部機殼 | H1 | 912 | 905 | 1095 | 1192 | 1192 | 1385 | 1385 | 1385 | 1385 |
H2 | 1120 | 1350 | 1400 | 1600 | 1600 | 1800 | 1800 | 1800 | 1800 | |
卸料口 | D2 | 950 | 1150 | 1250 | 1400 | 1500 | 1700 | 1950 | 2100 | 2300 |
D3 | 350 | 400 | 500 | 500 | 630 | 630 | 630 | 630 | 630 | |
D4 | 560 | 640 | 750 | 900 | 1100 | 1300 | 1550 | 1700 | 1900 | |
平臺 | P1 | 1100 | 1300 | 1300 | 1400 | 1500 | 1650 | 1650 | 1650 | 1650 |
P2 | 2000 | 2000 | 2100 | 2500 | 2500 | 2850 | 2850 | 2850 | 2850 | |
P3 | 1500 | 1500 | 1600 | 1800 | 1800 | 1800 | 1930 | 2000 | 3100 | |
P4 | 2000 | 2200 | 2100 | 2400 | 2800 | 2950 | 3100 | 3200 | 3250 | |
P5 | 897 | 1107 | 1137 | 1337 | 714 | 618 | 618 | 618 | 618 | |
維修架 | W1 | 1727 | 1727 | 1805 | 1825 | 2424 | 2875 | 2875 | 2875 | 2875 |
W2 | 3400 | 3600 | 3600 | 4100 | 4500 | 4650 | 4930 | 5100 | 6250 | |
中間機殼 | M1 | 435 | 500 | 530 | 590 | 650 | 700 | 700 | 700 | 700 |
M2 | 480 | 600 | 640 | 770 | 700 | 1000 | 1000 | 1000 | 1000 | |
進料口 | R1 | 950 | 1150 | 1250 | 1400 | 1500 | 1700 | 1700 | 1700 | 1700 |
R2 | 300 | 400 | 500 | 500 | 630 | 630 | 630 | 630 | 630 | |
R3 | 300 | 400 | 500 | 630 | 800 | 1000 | 1250 | 1400 | 1600 | |
R4 | 1600 | 1800 | 1900 | 1950 | 2000 | 2600 | 2600 | 2600 | 2600 | |
下部機殼 | B1 | 830 | 950 | 1050 | 1100 | 1100 | 1350 | 1350 | 1350 | 1350 |
B2 | 1800 | 2150 | 2250 | 2350 | 2350 | 2800 | 2800 | 2800 | 2800 | |
B3 | 1100 | 1200 | 1300 | 1450 | 1550 | 1850 | 2100 | 2250 | 2450 | |
基礎坑尺寸 | Z1 | 560 | 600 | 700 | 850 | 900 | 700 | 700 | 700 | 700 |
Z2 | 630 | 730 | 840 | 990 | 1200 | 1420 | 1670 | 1820 | 2020 | |
Z3 | 1200 | 1300 | 1400 | 1550 | 1650 | 1950 | 2200 | 2350 | 2550 | |
訂貨須知
用戶在訂貨時請提供下列數據
設備名稱: |
| 粒數: | mm |
輸送物料: |
| 容重: | t/m3 |
輸送能力: |
| 溫度: | ℃ |
提升高度: | m | 水分 | % |
運轉時間: | H/d | 特性 | 磨損性、粘型、腐蝕性 |
使用場所: | 室外、室內 |














